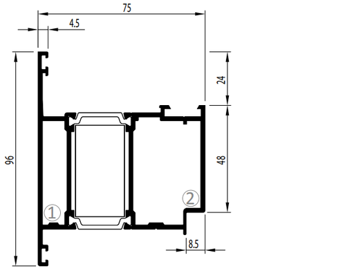
B1428 | 170-14028

Turflugelprofil auswärts Profile Roh PE = HL, HL =2,75m, Abw. = 364mm, Sichtfl. = 144mm

Aantal Prijs ex btw
1 - 9 € 106,30
Vanaf 10 € 106,30
  • Merk
  • Materiaal / Kleur
  • Productserie
  • Glasopname
  • Akotherm profiel type
  • Profielvorm

Deze combinatie bestaat niet.

Binnenkort voorradig
Levertijd in werkweken (±): 3


Merk: Akotherm
Materiaal / Kleur: Alu onbehandeld
Productserie: AT740 Deuren
Glasopname: 24 mm
Akotherm profiel type: Raam- en deur profielen
Profielvorm: T-Profiel